Nos avis clients
Nos avis clients
0

92600 ASNIERES - CENTRE DE SANTÉ

Asnières-sur-Seine (92600)
Réf : 224

Centre de Santé Équipé à Asnières Mairie – Opportunité Investisseur - MAIRIE

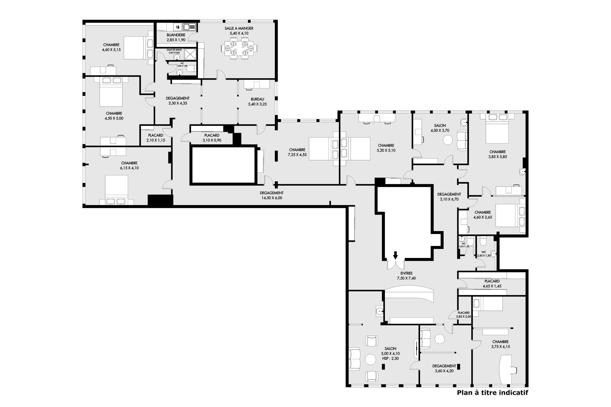
EZRA HOME vous présente une opportunité unique : un local professionnel de 371 m² Carrez situé au premier étage avec ascenseur, en plein cœur du quartier recherché d’Asnières Mairie.

Ce bien a été spécialement aménagé pour accueillir un centre de santé et dispose d’une configuration idéale :


• 10 cabinets professionnels, actuellement loués par des praticiens de diverses spécialités (ophtalmologue, kinésithérapeute, gynécologue, pédiatre, etc.)

• 2 salles d’attente modernes et confortables

• Un espace accueil pouvant recevoir jusqu’à 4 secrétaires


Rentabilité immédiate : Ce bien est vendu loué, générant un revenu locatif mensuel de 10 000 € grâce aux loyers des praticiens (1 000 € chacun). À cela s’ajoute une contribution mensuelle de 1 000 € par praticien pour la SCM (Société Civile de Moyens), permettant de mutualiser les charges d’exploitation.


Il est également possible d’acquérir ce bien sans locataires, pour un aménagement sur mesure selon vos besoins professionnels.


Atouts du bien :


• Emplacement stratégique dans un quartier dynamique et passant, à proximité immédiate des commerces et des transports•Idéal pour investisseurs ou professionnels de santé souhaitant développer leur activité dans un cadre attractif et fonctionnel•Proche de la gare d’Asnières-sur-Seine et des stations de métro, facilitant l’accès pour les patients et les praticiens

BIEN RARE - IDEAL INVESTISSEUR - PROCHE GARE - ENORMEMENT DE PASSAGE - SECTEUR MAIRIE

METRO: ASNIERES

Situation géographique exceptionnelle à deux pas des commerces et des transports.

Prix du bien 1 560 000 €
Pièce(s) 12
Chambre(s) 10

Caractéristiques du bien

Caractéristiques Valeurs
Code postal 92600
Surface habitable (m²) 371 m²
Surface loi Carrez (m²) 371 m²
Nombre de chambre(s) 10
Nombre de pièces 12
Etage 1
Vue Ville
Nb de salle de bains 2
Nb de salle d'eau 2
Mode de chauffage Electrique, Fioul
Type de chauffage Air pulsé, Radiateur
Format de chauffage Central, Central
Interphone OUI
Visiophone OUI
Nombre de garage 2
Cave OUI
Nombre de parking 2
Exposition Est

Infos financières

Caractéristiques Valeurs
Prix de vente honoraires TTC inclus 1 560 000 €

Bilans énergétiques

DPE GES
Ce bien vous intéresse ?
Fieldset par défaut
Fieldset par défaut
Validation

* Champs obligatoires

Contacter l'agence
Validation
Les informations recueillies sur ce formulaire sont enregistrées dans un fichier informatisé par La Boite Immo agissant comme Sous-traitant du traitement pour la gestion de la clientèle/prospects de l'Agence / du Réseau qui reste Responsable du Traitement de vos Données personnelles. La base légale du traitement repose sur l'intérêt légitime de l'Agence / du Réseau. Elles sont conservées jusqu'à demande de suppression et sont destinées à l'Agence / au Réseau. Conformément à la loi « informatique et libertés », vous disposez des droits d’accès, de rectification, d’effacement, d’opposition, de limitation et de portabilité de vos données. Vous pouvez retirer votre consentement à tout moment en contactant directement l’Agence / Le Réseau. Consultez le site https://cnil.fr/fr pour plus d’informations sur vos droits. Si vous estimez, après avoir contacté l'Agence / le Réseau, que vos droits « Informatique et Libertés » ne sont pas respectés, vous pouvez adresser une réclamation à la CNIL. Nous vous informons de l’existence de la liste d'opposition au démarchage téléphonique « Bloctel », sur laquelle vous pouvez vous inscrire ici : https://www.bloctel.gouv.fr Dans le cadre de la protection des Données personnelles, nous vous invitons à ne pas inscrire de Données sensibles dans le champ de saisie libre.
Ce site est protégé par reCAPTCHA, les Politiques de Confidentialité et les Conditions d'Utilisation de Google s'appliquent.